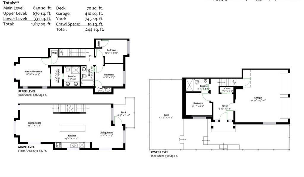
$1,324,000
123 Hugh Street
Sold
Features & amenities
- Garden
- In Suite Laundry
- Central Location
- Marina Nearby
- Private Yard
- Recreation Nearby
- Shopping Nearby
Additional details
- MLS® # R2890688
- Type Condo/Townhouse
- Subtype Townhouse
Listing is presented by
Kristy Masaro
Royal LePage - Wolstencroft